Загородный дом Ф 37 №656

Цена строительства от 1 998 000 ₽* * Стоимость не является окончательной
Заявка на консультацию
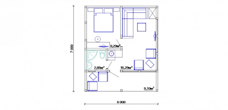
  • Общая площадь 37 м2
  • Длина 7 м
  • Ширина 6 м
  • Материал стен Каркас
  • Количество этажей 1
  • Подвал Нет
  • Мансарда без мансарды
  • Гараж Нет
  • Терраса Да
  • Проживание Круглогодичное
  • Количество комнат 2
  • Количество спален 1
  • Количество санузлов 1
  • Вид проекта дом
  • Застройщик Титан
  • Отделка фасада Обшивка деревом
  • Крыша Двускатная
  • Можно купить домокомплект Нет
  • Модульный тип строения Нет
Планировки
Описание проекта
  • Дверь входная: металлическая
  • Внешняя отделка: дерево
  • Внутренняя отделка: гипсокартон
  • Фундамент: сваи
  • Стены: дерево
  • Кровля: металлочерепица
  • Окна: ПВХ 5-ти камерные
  • Срок строительства: 1 месяц

Стоимость:

  • Тёплый контур: 1 998 000 р.
  • Предчистовая отделка: 3 034 000 р.
Вас может заинтересовать
Вас может заинтересовать

Выбор местоположения

Задать вопрос / написать нам

E-mail: domgis@mail.ru

Мы свяжемся с Вами в течение дня.

Тех. поддержка
Предмет обращения:
Тукущая страница

Мы свяжемся с Вами в течение дня.

Уведомление
Предмет обращения:
Тукущая страница
Обратный звонок
Обратный звонок
Выберите ваш город
Пожаловаться

Объявление опубликовано.
Изменения сохранены

Период публикации - бессрочный, при условии подтверждения актуальности каждые 50 дней. Уведомления будут отправляться на Вашу электронную почту.

Выберите причину снятия с публикации

Снятые с публикации объявления не участвуют в поиске и недоступны для подробного просмотра.

Для повторной публикации нажмите «Вернуть в публикацию»