 
                                 
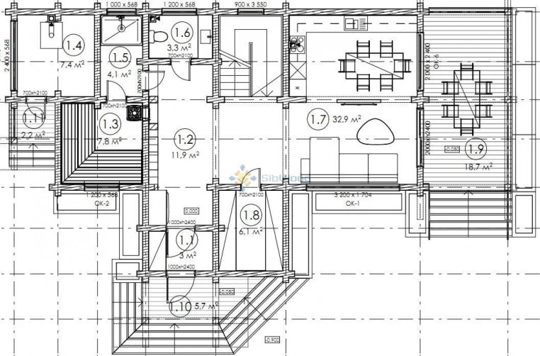
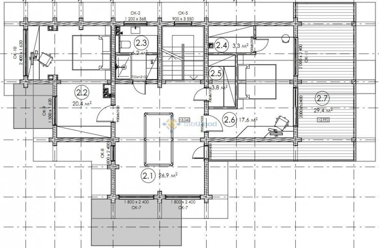
                                Превосходный кедровый дом для постоянного проживания и отдыха с баней, бильярдной, 2мя спальнями, огромной террасой, панорамным остеклением. Первый этаж Баня-сауна с отдельным входом, большой комнатой отдыха с камином Ванная комната Большой холл, кухня-столовая, гостиная Большая терраса с панорамным остеклением Второй этаж 2 спальные комнаты с гардеробными Ванная комната Бильярдный зал Огромная терраса с панорамным остеклением Этот или любой другой ваш проект, можно отредактировать под ваши потребности, изменить размеры, сделать его из сосны, кедра
Выбор местоположения
Мы свяжемся с Вами в течение дня.